
78CM高度吊柜

91cm高度吊柜
2、橱柜的深度
橱柜地柜深度(包括台面)一般在60.5cm左右。
其中地柜深度为56cm,吊柜深度为32cm。

还有一种地柜深度为71cm

调整脚的高度从8cm——22cm都有,不过由于目前成品PVC或铝质题脚板的高度只有10cm一种,所以10cm左右的调整脚使用较多。
从视觉上看,16—18cm的踢脚板高度更好看,这样整体地柜柜体(含台面)高度为85-87cm,但对于大多数人来说太高了,除非身高185cm以上。
还有一点要提醒,如果想在橱柜内放洗衣机,台面的高度就一定要慎重考虑。
滚筒洗衣机的高度一般为82cm或86cm,加上台面4cm,总高度为86—90cm。
在保持踢脚板10cm高度前提下,可以采取局部柜体加高(78cm)的办法来解决。
二、厨房的布局
平时我们到商店买东西,特别是买衣服,会有这样的感觉:挂在橱窗里,或者展示架上效果很好,真的穿在自己身上,也不过如此。
很多时候,我们的眼睛会欺骗自己的判断力。营造氛围有两大要素:一是空间,二是灯光。
以橱柜展示为例,展厅出样的成品橱柜一般设计得很庞大,单个厨房的展示面积都在20M2左右或者更高。但是,我们房子的厨房有这么大吗?一般公寓的厨房面积 在4.5—7.5M2左右,最大不过10M2。一些别墅的厨房可能大些,但最大也不会超过20M2。而且,我们中国人的餐饮习惯并不适合开放式厨房,特别 是那种餐厅、厨房合为一体格局。所以展厅的摆设永远是参考。
灯光问题。家庭的灯光和展厅的灯光是不能相比的,厨房毕竟是一个烧火做饭的地方,很少有人会在厨房里布置射灯、轮廓灯带,最多装装吸顶灯,吊柜下面装个操作灯。即使是客厅里的灯光也赶不上展厅的灯光布置,况且很多时候客厅的灯也不是全开。
那么我们如何确定橱柜的布局呢?
首先学习几个小贴士。
TIPS NO.1
灶具左右应保证至少30cm以上的空间。最好能有50cm。并根据操作习惯,确定不锈钢调料篮的位置。
TIPS NO.2
靠近灶具的地方可以用抽屉或者调料篮,以便于拿取工具。
但是家里已经有孩子,建议不要在灶具下方安装三层抽屉。孩子可能攀爬抽屉到灶台上,引起不必要的伤害。
TIPS NO.3
不要在靠近拐角的地方安装抽屉。
TIPS NO.4
地柜的尺寸不要算得太死,要考虑到墙体的平整度误差。
设计时最好在橱柜和墙体间留有空隙,这样可以把橱门全部打开。
留空距离建议3cm以上,最好在5-6cm左右。
工业化生产的橱柜,应该都是标准柜体。
常见的柜体有:30cm、40cm、50cm、60cm、80cm

大家可能要问,为什么基本柜体就这么多。
90cm柜,100cm柜,120cm为什么没有?
回答这个问题,就要从门板入手了。
围绕这些基本柜体,门板只要四种规格就够了:30cm、40cm、50cm、60cm。
30cm柜、40cm柜、50cm柜: 分别使用30、40、50cm单门
60cm柜 : 可以60cm单门,也可以30cm*2 双门
80cm桂 : 40cm*2双门 30+50cm双门

超过80cm以上宽度的柜体,从强度上讲,并不稳定。需要加装立板、立柱支撑,否则容易变形。
而且90cm柜体,平分对应的门板是45cm*2,45cm的门互换性能比较差。
常见的90柜体,基本上用于灶具柜(对应90cm欧式烟机),所以很多厂家为了避免非标的出现,一般把灶柜处理成抽屉柜,而且抽屉利润比较高。

90cm宽度欧式烟机,处理起来确实有些难度。
根据标准的设计方案,欧式烟机应该对应连烤箱4头炉。两边两个30公分的拉篮柜。
下面有两种配比方案,请体会一下。

第一种方案:
欧式烟机两侧紧靠两个吊柜,空间上感觉局促,而且也不利于日后对烟机的清洁(毕竟会有很多油烟积存)。如果要安装吊柜侧装饰板的话,吊柜就成了非标尺寸了。
第二种方案:
欧式烟机与两侧吊柜间留有各15cm空隙,这样显得比较大方,也能突出欧式烟机的气派出来。日后的清洁也很方便。
即使在吊柜靠近烟机一侧安装装饰板,空间也绰绰有余。

说到这里,再提一下关于油烟机的选择。
目前市场上主要有两种油烟机,欧式和中式,其中欧式的较为宽大,尺寸一般在90cm左右,还有120cm宽的。中式烟机一般在80cm宽,还有部分是75cm宽。
当然,油烟机的尺寸其实不止这些,还有60cm,40cm宽,其实国内很多工厂为外国品牌OEM代工的尺寸,基本上以60cm宽为多,包括我们熟悉的进口品牌。烟机的尺寸其实和灶具尺寸是对应的。
顺便说一下:(不是广告)
目前国内规模最大的油烟机、灶具OEM外销厂家位于杭州萧山,这个厂的型号可能是国内最全的,我们熟悉的一些品牌,包括西XX,伊XXX,其实自己并不生产产品,都是委托该厂代工。
如何选择适合自己的油烟机?
撇开价格因素不谈,最主要的考虑因素是厨房的尺寸,特别是悬挂烟机墙的长度。
常见的厨房为矩形,橱柜一般为L型,靠窗部位一般放水槽,较长的墙面悬挂油烟机。
如果你的厨房长度超过2.5M,可以考虑购买欧式烟机,如果超过3.5M以上,则可以考虑120cm的平板烟机。
如 果厨房长度小于2.5m,建议还是用75cm/80cm中式传统深罩机,这样显得更加协调一些。理由很简单,90cm的欧式烟机对于小厨房来说,简直是一 个庞然大物,长度2.5cm,减去烟道宽40cm(高层为70cm),烟机的宽度(包括留空部分)占据了墙面实际可利用部分的一半,视觉上会很不协调。
按照黄金分割观点,油烟机宽度占墙面长度的0.382比较合适。
说句老实话,无论欧式还是中式,仅是外壳不同,里面的风机都是一样的。

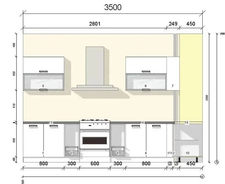
这是立面图

如果使用欧式烟机,上柜的空间就会显得相对局促。
而且会产生非标柜体(70cm)。
如果墙面宽度超过3.5m,烟机两边安装翻门吊柜,空间感就会很好。